The Entertainer ♥️
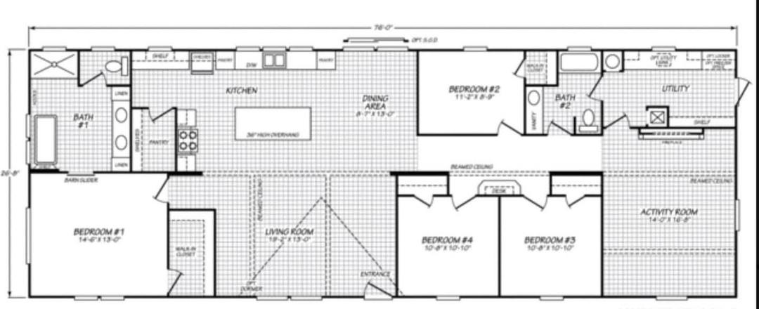
4 Bedroom 2 Bath. Den. Size 28×80(76)
💥 Finished Drywall
💥 2×6 Exterior Walls
💥 OSB Wrap
💥 Stainless Appliances
💥 Architectural Shingles
Price:$90000
Down Payment including delivery,setup and installation:$5000
Monthly payment accepted between $500-$4500
















































