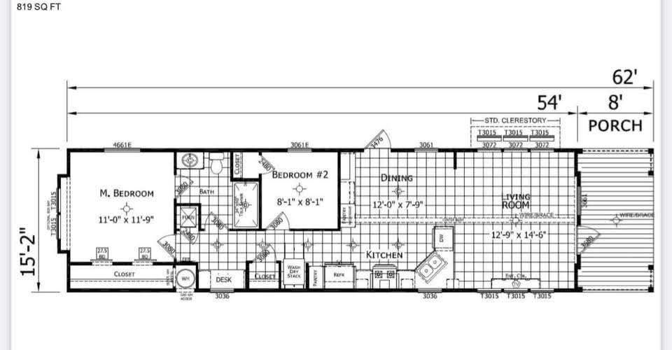
The Agate model
819 sq foot
2 bed/1 bath
single section & You get a floating entertainment center, clerestory windows, a covered front porch, a metal roof, a gorgeous tile shower with rolling barn doors, and a desk in the hallway!
Price: $35,000
Down payment $2,500
Financing available.






















